In addition to our vast experience in HVAC systems designs; AQS engineers are active members in ASHARE local chapters and at the International Society Level. This interactive collaboration gives us high exposure to all new HVAC industry technologies applied within the region
- Heat Load Estimation & Analysis
- In Door Thermal Analysis & Control
- Air Cooled Chillers - Chilled water Systems
- Water Cooled Chillers – Chilled Water Systems
- Central Cooling Plants
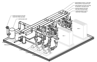
- Chilled water pump rooms and distribution networks
- ETS rooms design
- Package and DX systems
- VRV Systems
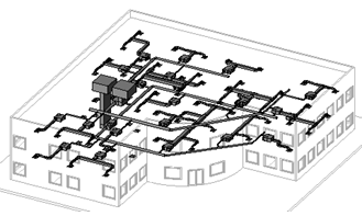
- Air movement and Duct work distribution networks.
- Space heating Systems
- Boilers and Calorifiers
- In Door Air Quality Analysis & Control