
Licenced under QFCA - No. 001005
Medium & Low Voltage Power Distribution Systems & Networks
Dry & Oil Type transformers
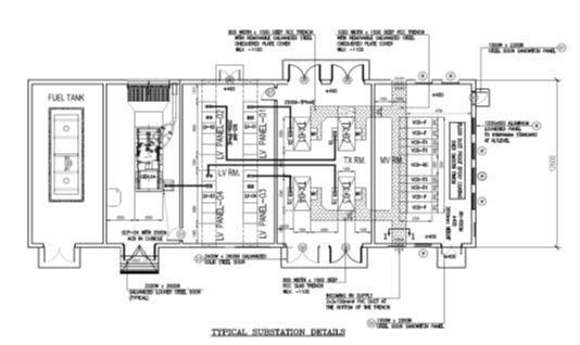
11 KV Substations Design
SLD Diagrams & Discrimination Analysis
Motor Control Centers & Motor control Panel
LV- Main Distribution Boards (M.D.B) & Power Factor Corrections
Electrical Power Containment and cabling System
Busbar Trunking System
Sub-Main Distribution, and Distribution Boards
Feeder Pillar & Retractable Feeder Pillar
Diesel Generators